Do You Need a Permit or Engineered Plans? A Complete Guide for Barndominium Builders
How to quickly check your county requirements—and avoid costly delays before your build even begins
Buckeye Plans
11/28/20254 min read


Building a barndominium or modern farmhouse is exciting—but before you start ordering materials, hiring installers, or pouring concrete, you need to make sure your home is legal to build in your county.
The #1 mistake new barndominium builders make?
👉 Starting the project before verifying whether their county requires a building permit or engineered plans.
This one oversight can delay a project by months—or stop it entirely.
This guide walks you through exactly how to figure out what your county requires, what documents they expect, and how Buckeye Plans ensures your design meets all codes nationwide.
1. Why Counties Have Different Rules for Barndominiums
Every county creates its own building and zoning rules because:
soil conditions differ
wind and snow loads vary
flood zones must be considered
local zoning districts restrict structure types
foundation requirements change state-to-state
some regions need stricter engineering due to tornadoes, hurricanes, or earthquakes
That means the rules for building a barndominium in:
Mississippi
Ohio
Kentucky
Tennessee
West Virginia
Texas
Pennsylvania
…can all be completely different.
This is why Buckeye Plans engineers plans for your specific county, not just your state.
2. What Most Counties Require (A General Starting Point)
While every region is different, here’s what most counties will ask for when building a barndominium:
✔️ A set of architectural drawings
This includes floor plans, elevations, roof layout, and structural notes.
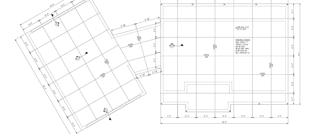
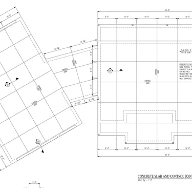
✔️ An engineered foundation plan
Most counties require a stamped foundation plan showing load paths and slab thicknesses.
✔️ Framing / Structural details
For post frame, steel frame, and hybrid structures, engineering is nearly always required.
✔️ Electrical & plumbing layout
Some jurisdictions require this before issuing a permit.
✔️ Site plan showing home placement
Driveway, utilities, septic location, and setbacks.
✔️ Energy compliance certificate (in many states)
Especially required for new construction.
✔️ Material specifications
Siding type, roofing, windows, door egress sizes, truss spans, etc.
Buckeye Plans includes or sources all of these depending on the package you choose.
3. Do Barndominiums Require More Documentation?
Short answer: Yes—usually.
Why?
Because most barndominiums use:
large open spans
vaulted living rooms
long-span trusses
metal roof systems
heavy window walls
unconventional framing (post frame / steel / hybrid)
Counties want assurance that these structures can safely withstand:
wind
uplift
snow load
lateral bracing
seismic loads (in some states)
This is why Buckeye Plans offers engineering in 47 states.
4. How to Check YOUR County Requirements (Step-By-Step)
Here’s the fastest and easiest way to confirm requirements:
Step 1: Search Your County Building Department
Google this:
"[Your County Name] Building Department"
"[Your County Name] Building Permits"
"[Your County Name] Permit Office"
Example:
"Jones County MS Building Department"
Most counties have a simple page listing:
permit types
required drawings
engineering requirements
phone number and email
zoning map
inspection schedule
Step 2: Download the County’s Permit Packet
Nearly every county now posts PDFs online, usually titled:
Residential Permit Packet
New Construction Requirements
Building Permit Application
Structural Guidelines for New Homes
Residential Plan Review Checklist
This document alone answers 90% of questions.
Step 3: Look for These Keywords
You're specifically searching for clues like:
“Engineered plans required”
“Stamps required for structural drawings”
“Wind load requirements”
“Foundation must be engineered”
“Truss engineering required”
“All new construction requires an architectural plan”
“Submit floor plan and elevations”
If the packet says any of these, you need professionally drafted plans—not a sketch or internet PDF.
Step 4: Check Zoning
Search:
"[Your County Name] Zoning Map"
Confirm:
Your land is zoned for residential or agricultural use
Barndominiums are allowed (most counties do allow them)
Minimum setbacks are compatible with your land
Your home’s footprint won’t violate restrictions
If you want help, Buckeye Plans can overlay your chosen design onto your actual land.
Step 5: Call or Email the County (Simple Script)
Here’s the exact wording:
“I am building a new home and need to confirm your requirements for plan submission. Do you require engineered plans? And do you require sealed foundation drawings or structural framing drawings?”
Counties will give you clear directions in minutes.
5. What Happens If You Build Without Permits or Engineering?
Many rural counties don’t actively police new construction—but that doesn’t mean you’re safe.
Problems arise when:
You sell the home
You refinance
You insure the home
You want utilities connected
You want an appraisal
A storm causes damage
A bank requires certification
Without proper plans:
❌ insurance claims may be denied
❌ refinancing may be blocked
❌ the appraisal may come in low
❌ resale value drops
❌ structural issues become your liability
Starting with professionally drafted, engineered plans prevents all of this.
6. How Buckeye Plans Makes the Permit Process Easy
When you purchase a plan or custom design from Buckeye Plans, we provide:
✔ Architectural drawings
✔ Structural framing layouts
✔ Foundation engineering
✔ Roof engineering
✔ Electrical + plumbing layouts
✔ Material specifications
✔ Builder-ready sheets
✔ State-compliant code notes
We design hundreds of homes annually, so we already know how to satisfy the most complex counties—from northern snow regions to southern hurricane zones to western seismic regions.
7. How to Know When You Need Engineering
You definitely need engineered plans if:
you are in a hurricane zone
you are in a tornado-prone region
you have large spans (20’+ open rooms)
you want large window walls
you are building with post frame or steel
your porch wraps or exceeds 10’
your plan is over 2,000 sq ft
your roof pitch changes multiple times
You might need engineering if:
you’re on sloped property
soil reports require thicker foundations
local code office requests verification
You typically do not need engineering if:
you're in an unincorporated county with minimal regulation
your home is under 1,200 sq ft
you have a very simple roofline
…but most modern barndos do.
Permits and engineering aren’t hurdles—they’re protection.
They protect:
you
your investment
your future resale
your insurance coverage
your safety
and your construction budget
And with the right partner, navigating county requirements is simple.
Buckeye Plans is here to make sure your home is designed correctly, engineered properly, and ready to pass every permit review the first time.